top of page

Tyler McKenzie - Week 1

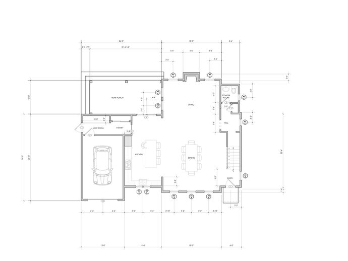
I have many takeaways from my first week back working at Rush Dixon Architects. Just sitting in on the weekly morning meeting made me...

bottom of page